Projekt Papiermühlstraße
Wohneinheiten
Größe
Zimmer
Grundstücksfläche
Wohnfläche
Zimmer
Moderne Mehrfamilienhäuser im beliebten Leipziger Stadtteil Stötteritz
Im beliebten Leipziger Stadtteil Stötteritz entstehen zwei moderne Mehrfamilienhäuser, die zeitgemäßen Wohnkomfort mit einer hervorragenden städtischen Anbindung verbinden.
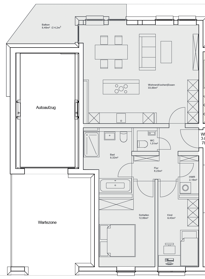
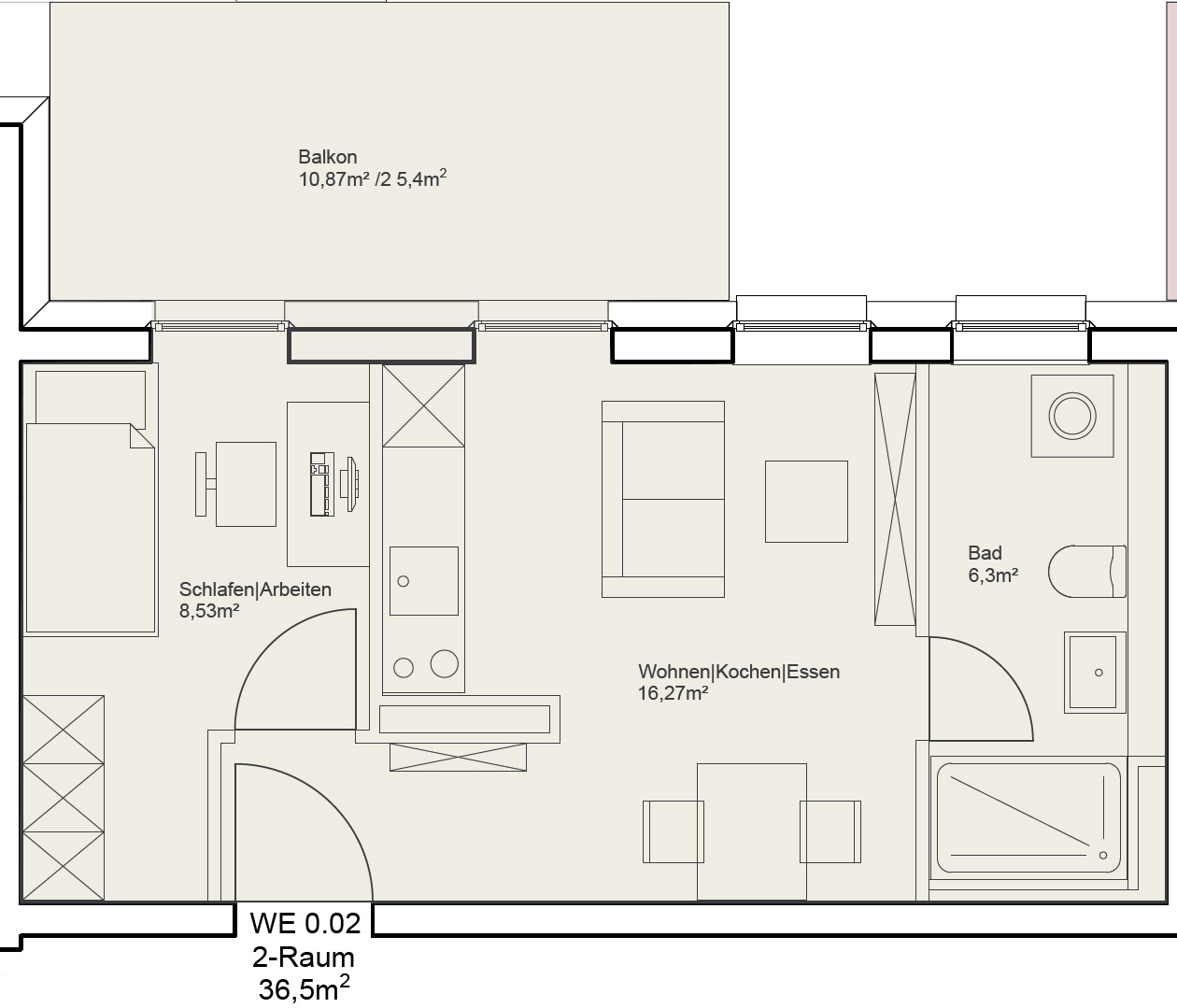
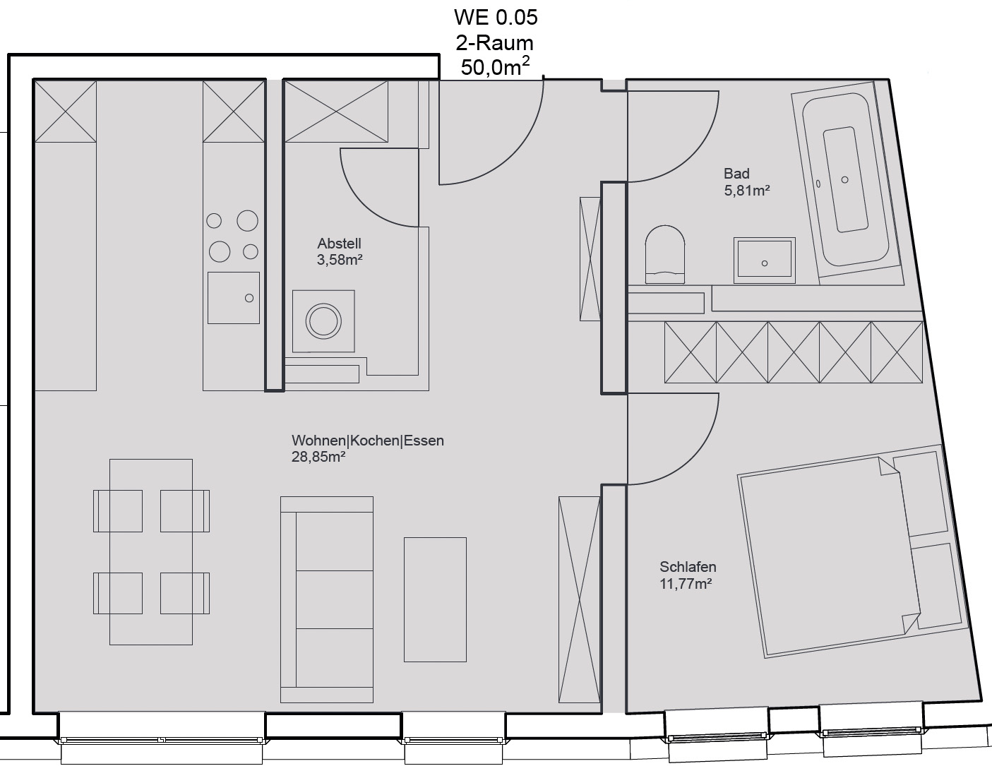
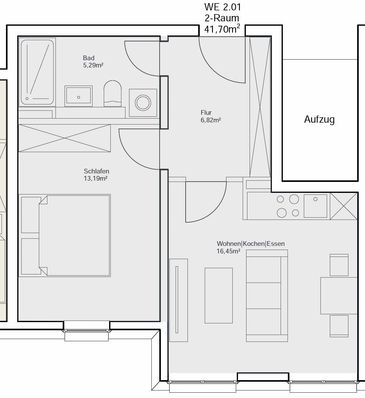
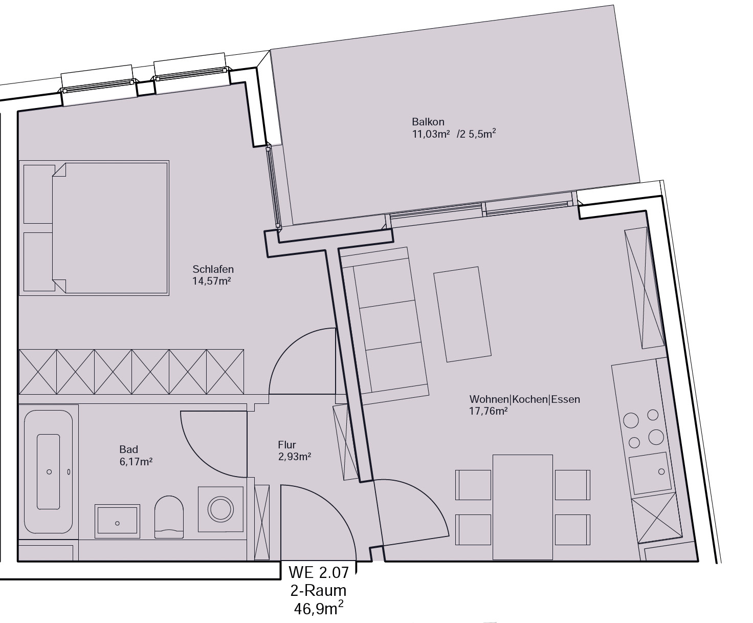
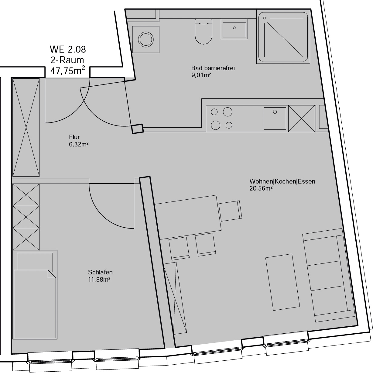
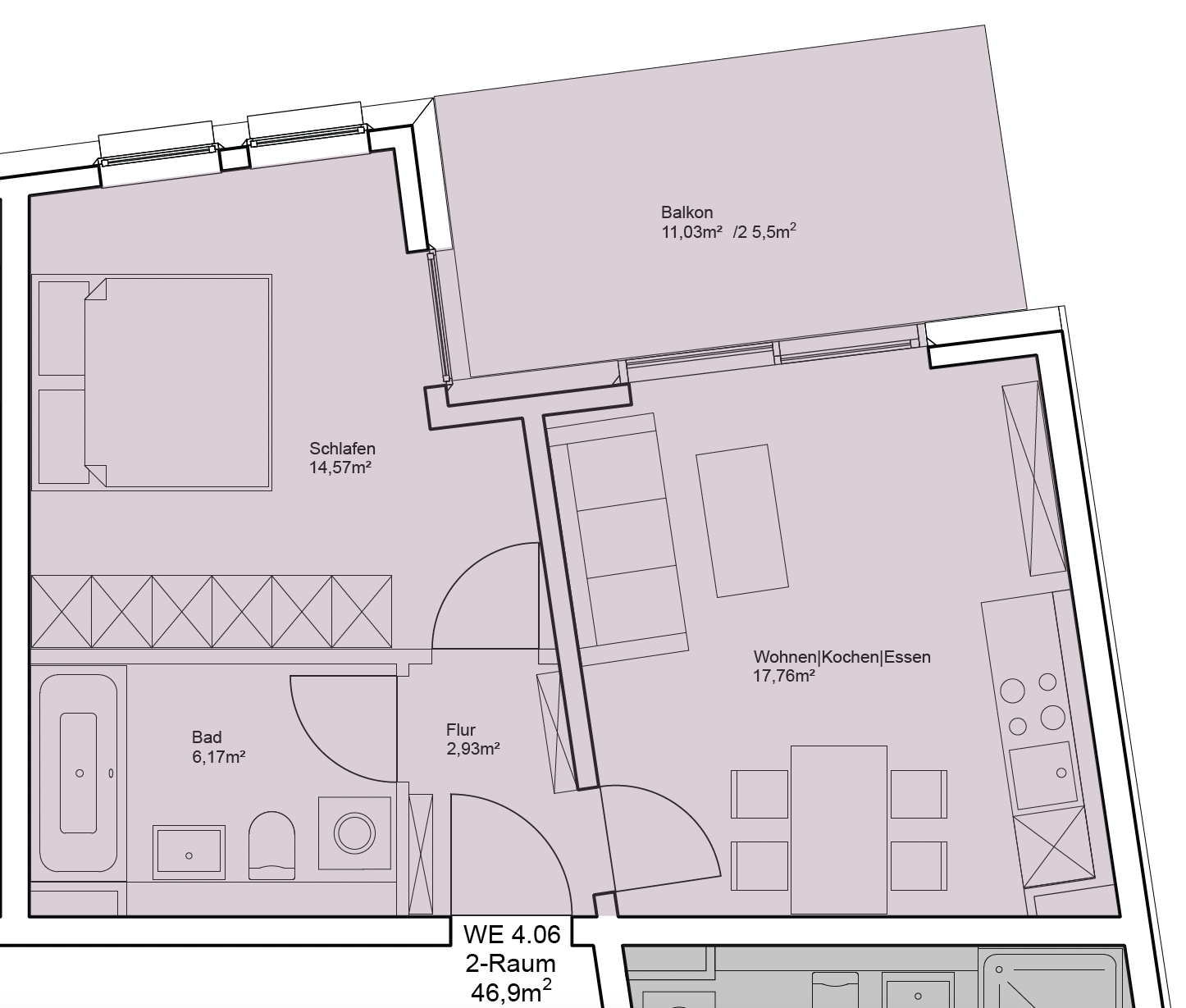
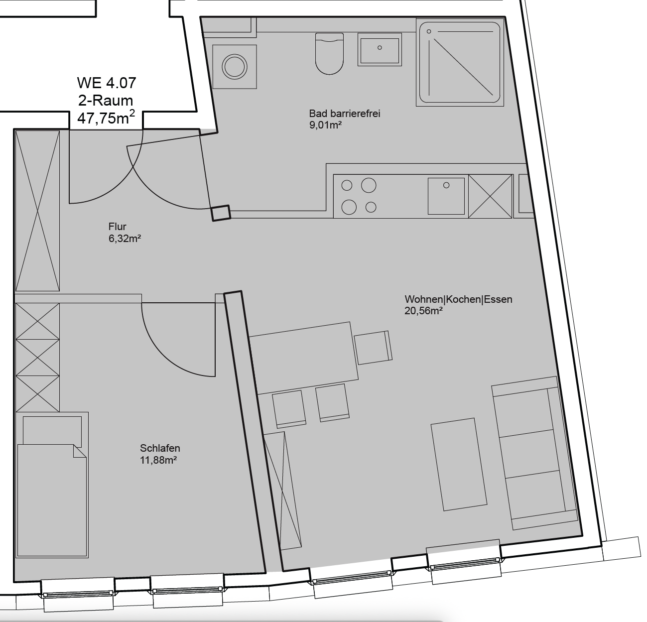
Auf dem rund 1.900 m² großen Grundstück wird im vorderen Bereich eine elegante Lückenbebauung mit 48 Wohneinheiten realisiert. Die Wohnungsgrößen reichen von kompakten 35 m² bis hin zu repräsentativen 195 m² – ideal für Singles, Paare und Familien.
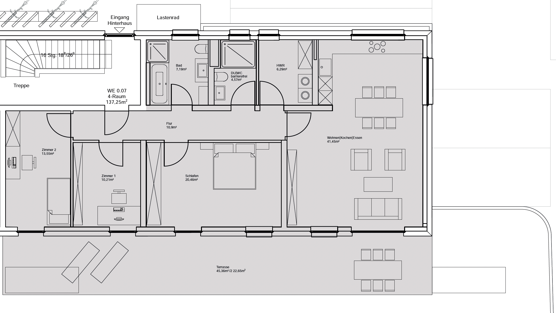
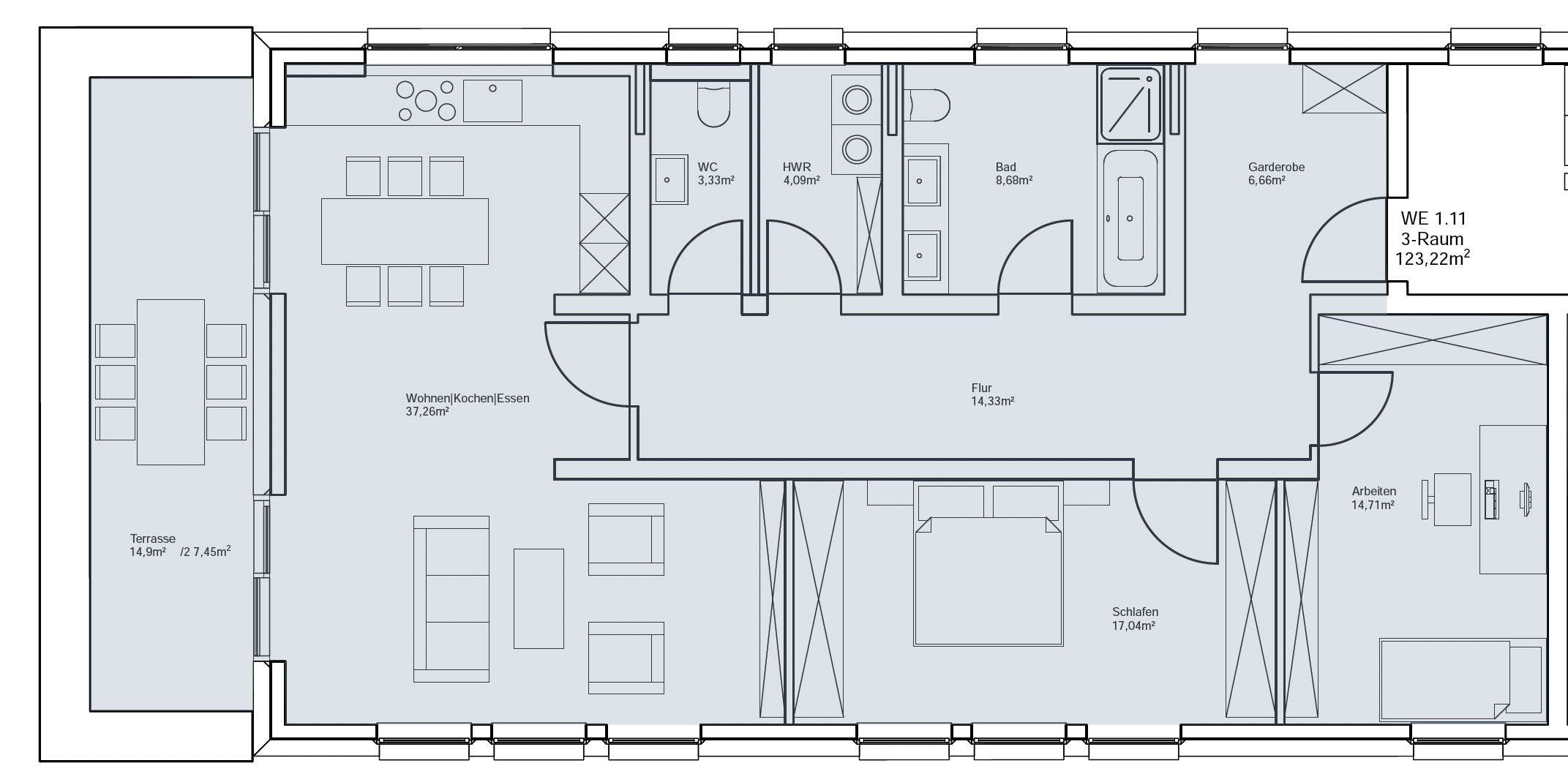
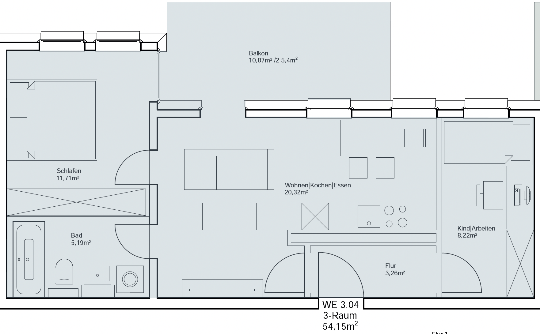
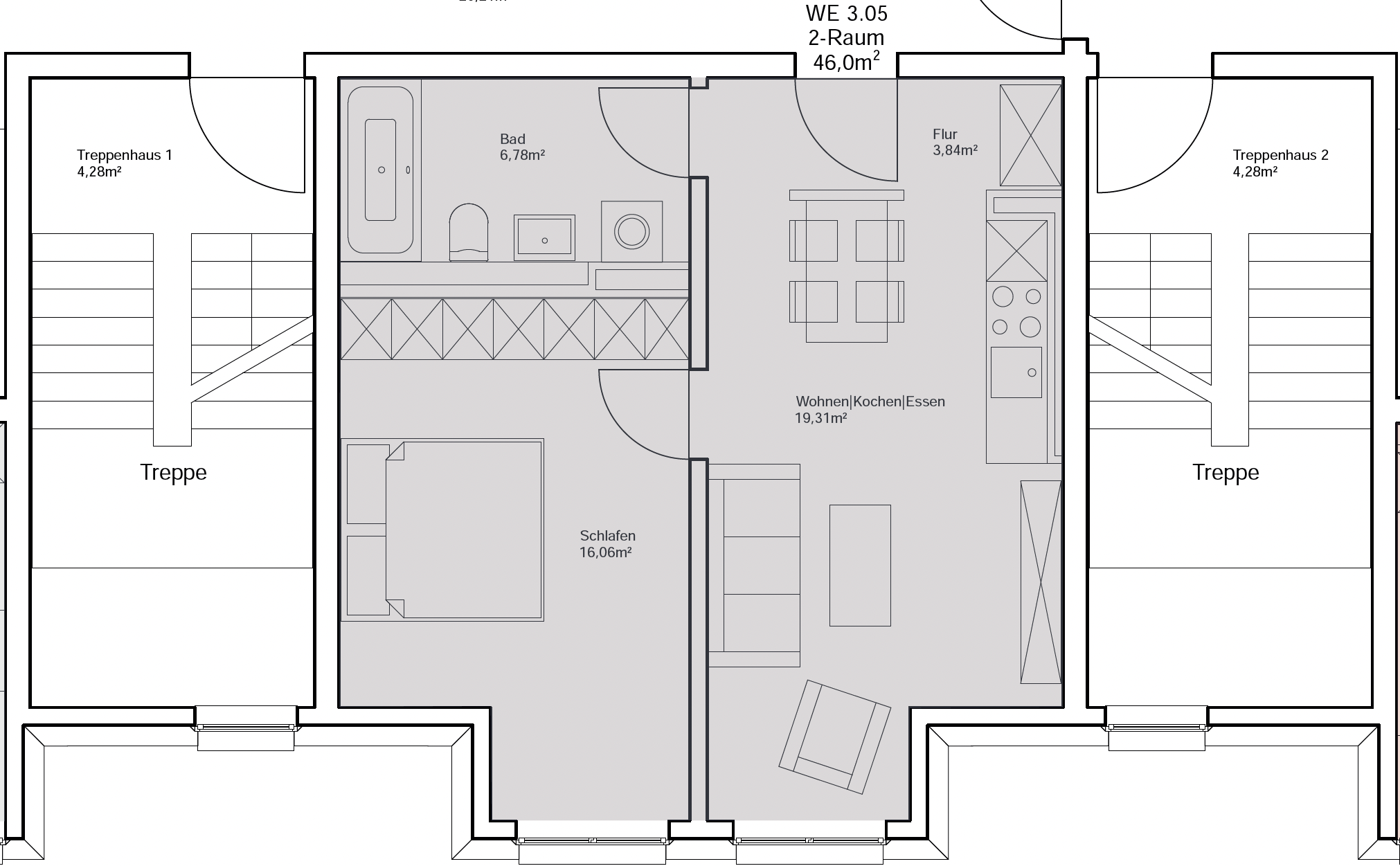
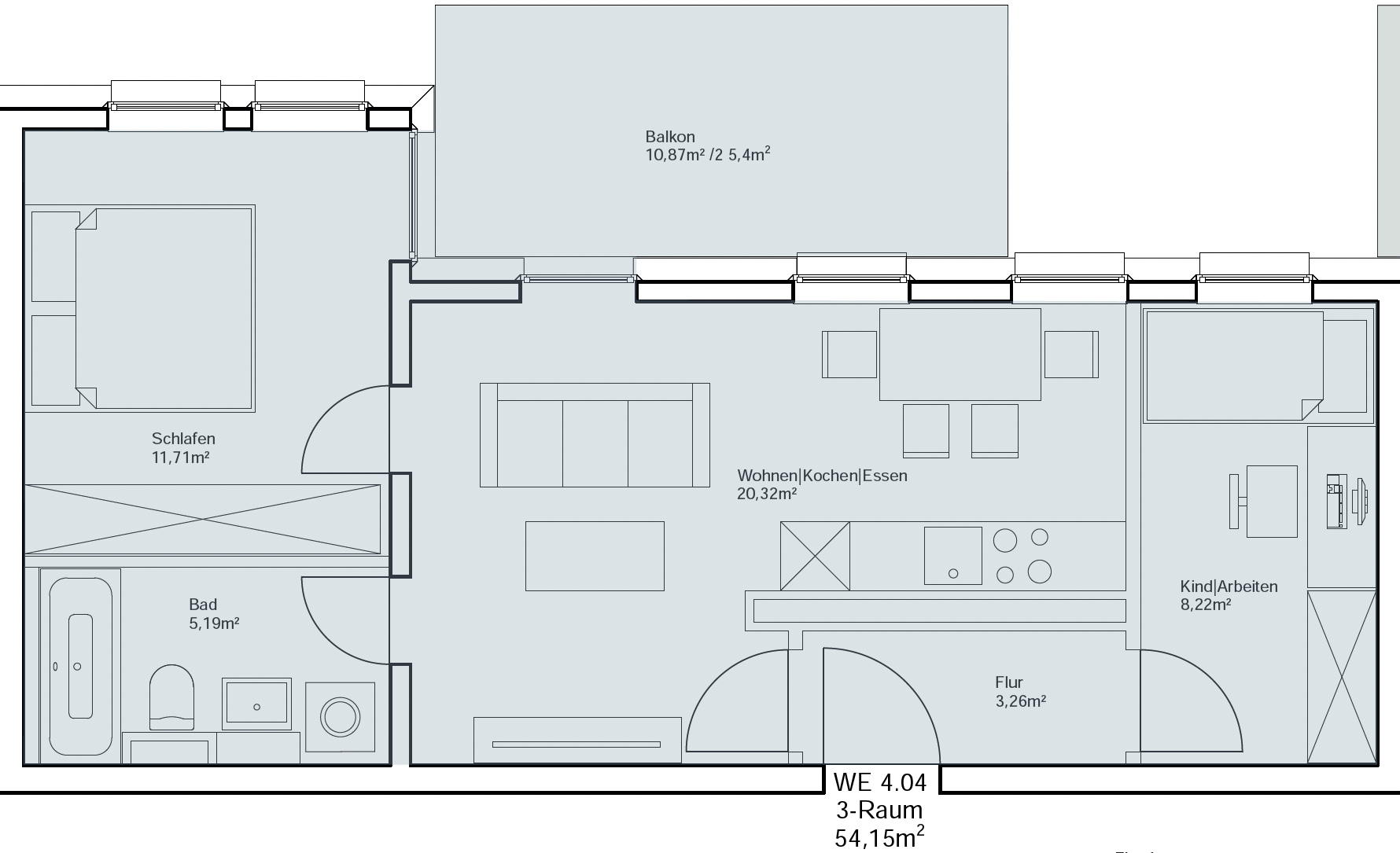
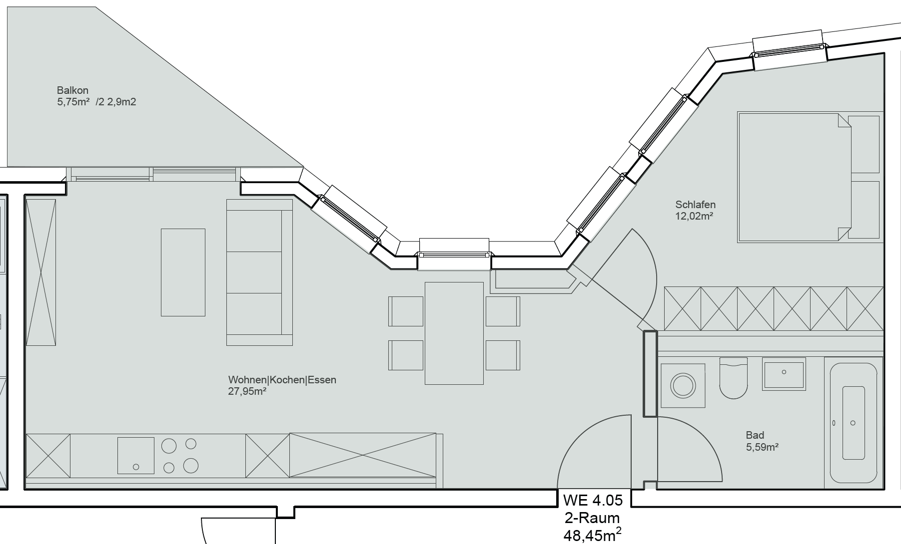
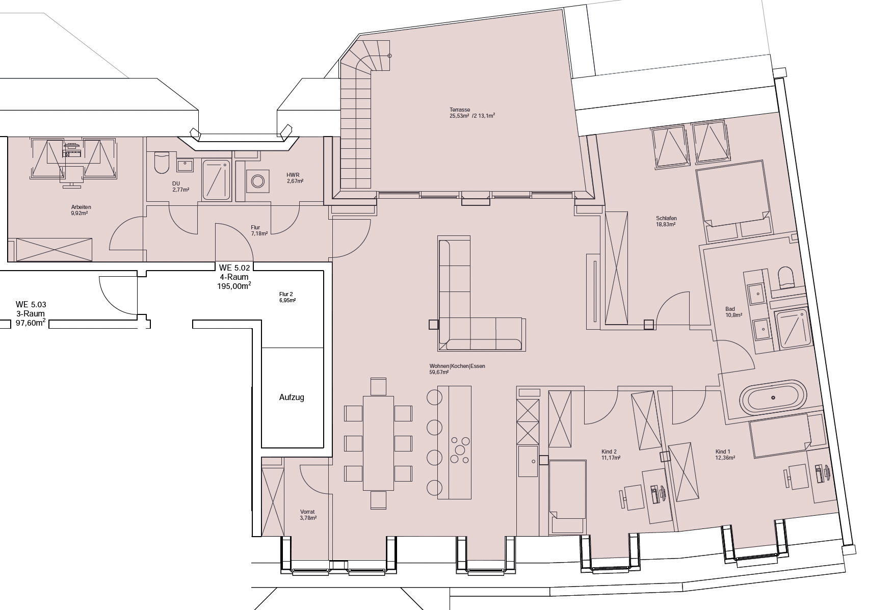
Das geplante Hinterhaus umfasst vier Wohneinheiten, bestehend aus zwei 3-Raum- und zwei 4-Raumwohnungen mit Wohnflächen zwischen 137 m² und 147 m². Ruhig gelegen im Innenhof, bieten diese Wohnungen ein Höchstmaß an Privatsphäre und Wohnqualität.
Zwei Untergeschosse erstrecken sich teilweise über das gesamte Grundstück und schaffen Raum für eine Tiefgarage sowie großzügige Fahrradabstellmöglichkeiten.
Highlights dieses Projekts
- Zwei moderne Mehrfamilienhäuser in Leipzig‑Stötteritz
- Vorderhaus als Lückenbebauung mit 48 Wohneinheiten (ca. 35–195 m²)
- Hinterhaus im Innenhof mit 4 Wohnungen (3‑/4‑Raum, ca. 137–147 m²)
- Grundstücksgröße ca. 1.900 m²
- Zwei Untergeschosse mit Tiefgarage und Fahrradabstellmöglichkeiten
- Barrierearme Planung (u. a. barrierefreie Einheiten)
- KfW 40 QNG
- Steuerbonus durch AfA
- Wärmepumpe
- PV Anlage
- KNX Smarthome
Kategorie

Grundstücksfläche

Projektadresse


Baustart

Baustart

Fertigstellung

Einheiten in diesem Projekt
Noch ? von ? Einheiten verfügbar
Wie viel Wohnfläche hätten Sie gerne?
Was soll es denn sein?

Ihre Kapitalanlage mit Potenzial
Der Erwerb einer Neubauimmobilie lockt nicht nur mit Wertsteigerungspotenzial und Mieteinnahmen, sondern auch mit erheblichen steuerlichen Vergünstigungen.
Das neue Wachstumschancengesetz bietet Immobilieninvestoren attraktive steuerliche Anreize, insbesondere beim Erwerb von Neubauimmobilien. Die Einführung einer degressiven Abschreibung (AfA) ermöglicht es, einen Teil der Investitionskosten schnell abzusetzen. Im ersten Jahr können anteilig 5 % der Kosten abgeschrieben werden. In den Folgejahren erfolgt die Abschreibung mit jeweils 5 % des verbleibenden Restbuchwerts.
Zusätzlich kann in den ersten vier Jahren eine Sonderabschreibung von bis zu 5 % der begünstigten Anschaffungskosten in Anspruch genommen werden. Die Inanspruchnahme der degressiven AfA und Sonderafa setzt voraus, dass das Objekt spätestens im Jahr der Fertigstellung erworben wird.

ALLES WAS SIE ZUM LEBEN BRAUCHEN
Der Leipziger Südosten bietet mit Stötteritz ein dynamisch wachsendes Viertel, das auf 3,68 km² urbanes Leben und Natur vereint. Besonders Familien und Studierende schätzen die Mischung aus kieziger Atmosphäre, historischer Architektur und der direkten Nähe zum Stötteritzer Wäldchen sowie dem Völkerschlachtdenkmal. Dank hervorragender Anbindung und vielfältiger Gastronomie verbindet der Stadtteil perfekt Erholung mit modernem Stadtalltag.
Lage & Infrastruktur
Stötteritz liegt südöstlich des Leipziger Stadtzentrums und zählt zu Leipzigs höchstgelegenen Ortsteilen – beliebt bei Singles, Familien und Senioren dank guter Anbindung und angenehmem Wohnumfeld.

Bäckerei
Bahnhof
Park
Schule
100 m
100 m
200 m
200 m
600 m
600 m
1000 m
1000 m




Fordern Sie
jetzt Ihr Exposé an
Im Exposé erhalten Sie alle wichtigen Informationen zu Ihrer neuen Wohnmöglichkeit. Auf Wunsch vereinbaren wir gerne ein persönliches Beratungsgespräch, um Ihre individuellen Fragen zu klären.




























































