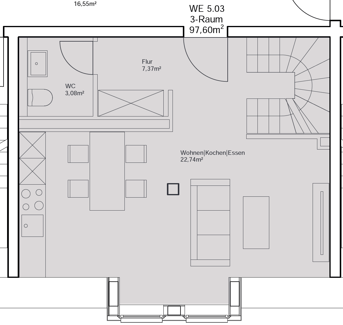
Top 5.03
Maisonette im Dachgeschoss mit großzügiger Dachterrasse
Diese Maisonette bietet einen offenen Wohn-/Essbereich, klare Rückzugszonen und viel Licht. Die große Dachterrasse erweitert den Wohnraum nach außen – ideal für entspannte Stunden über den Dächern und flexibel nutzbares Wohnen.




Fordern Sie
jetzt Ihr Exposé an
Im Exposé erhalten Sie alle wichtigen Informationen zu Ihrer neuen Wohnmöglichkeit. Auf Wunsch vereinbaren wir gerne ein persönliches Beratungsgespräch, um Ihre individuellen Fragen zu klären.






















