Energetische Altbausanierung
Wohneinheiten
(Bauabschnitt 1)
Größe
Zimmer
Grundstücksfläche
Wohnfläche
Zimmer
Im begehrten Lutherviertel in Chemnitz entsteht etwas Besonderes:
Auf 5.700 m² Grundstücksfläche werden 6 Mehrfamilienhäuser umfassend energetisch saniert – und das auf A+-Standard. Ein Projekt, das historischen Charme mit modernster Technik verbindet – effizient, nachhaltig und zukunftssicher. Ideal für Eigennutzer & Kapitalanleger
Highlights dieses Projekts
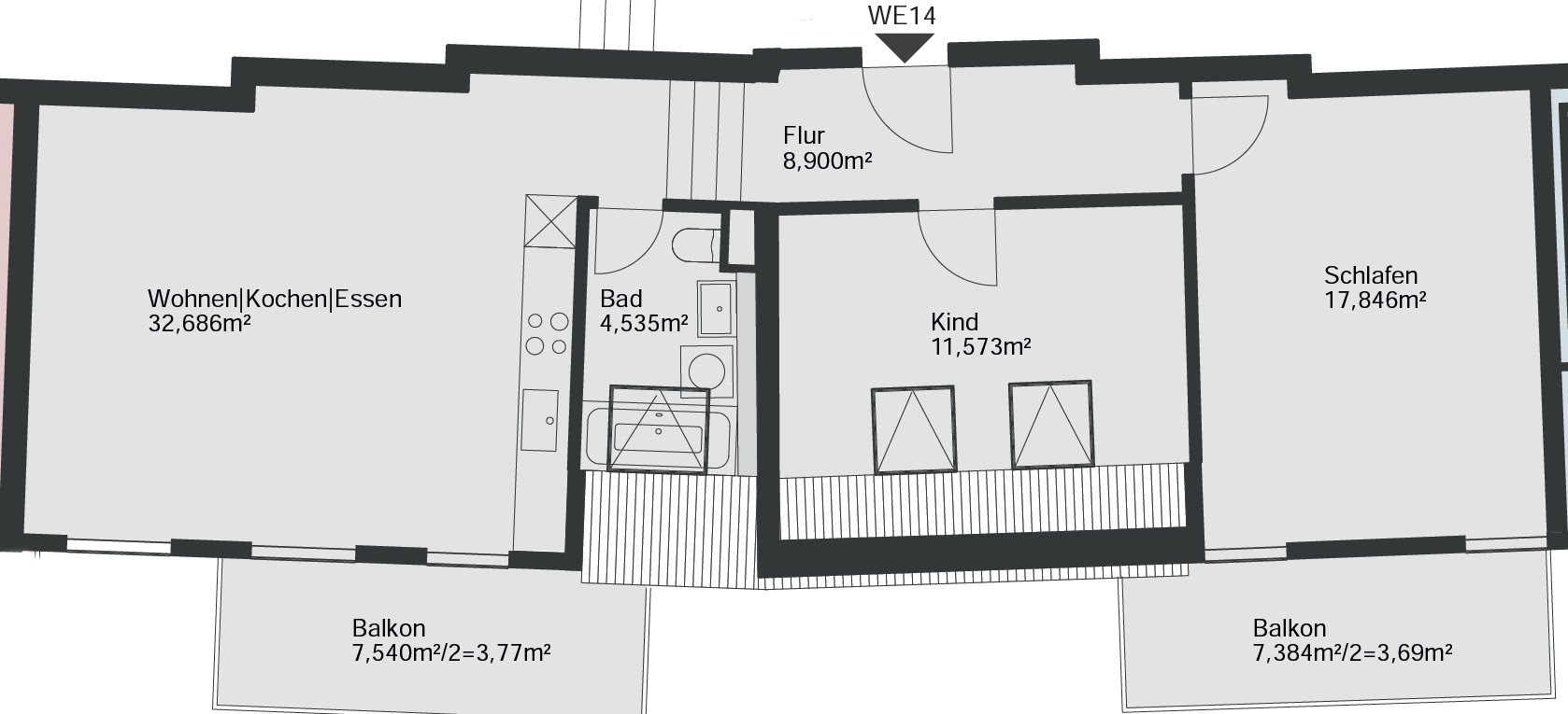
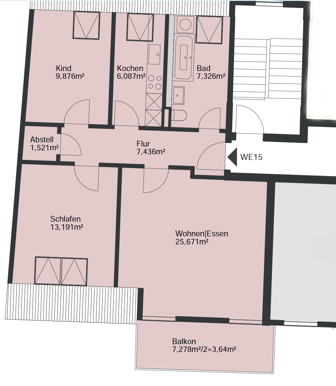
- Moderne, durchdachte Grundrisse
- 2–4 Raumwohnungen
- Wohnflächen von 32 bis 105 m²
- Wärmepumpe
- PV-Anlage
- Fußbodenheizung
- Fahrstuhl
Kategorie

Grundstücksfläche

Projektadresse


Baustart

Baustart

Fertigstellung

Einheiten in diesem Projekt
Noch ? von ? Einheiten verfügbar
Wie viel Wohnfläche hätten Sie gerne?
Was soll es denn sein?


CHEMNITZ – VOM INDUSTRIESTANDORT ZUR KULTURMETROPOLE
Die drittgrößte sächsische Stadt Chemnitz verbindet industrielle Tradition mit einer modernen Kreativ- und Hochschulszene. Nur einen Kilometer vom Zentrum entfernt überzeugt das Lutherviertel durch seine Mischung aus prachtvollen Gründerzeithäusern und begrünten Alleen. Dank der exzellenten Anbindung sowie der direkten Nähe zu Schulen, Ärzten und Einkaufsmöglichkeiten bietet das Viertel eine erstklassige Infrastruktur in einem atmosphärischen Wohnumfeld.2
Lage & Infrastruktur
Urbanes, lebendiges Quartier mit sanierten Altbauten: Supermärkte, Bäckereien und kleine Geschäfte fußläufig, Buslinien und Nähe zum Hauptbahnhof. Schulen, Kitas, TU Chemnitz sowie Cafés, Restaurants und Kulturangebote sind in wenigen Minuten erreichbar.

Supermarkt
Bushaltestelle
Park
Arzt
200 m
200 m
250 m
250 m
350 m
350 m
500 m
500 m




Fordern Sie
jetzt Ihr Exposé an
Im Exposé erhalten Sie alle wichtigen Informationen zu Ihrer neuen Wohnmöglichkeit. Auf Wunsch vereinbaren wir gerne ein persönliches Beratungsgespräch, um Ihre individuellen Fragen zu klären.



























