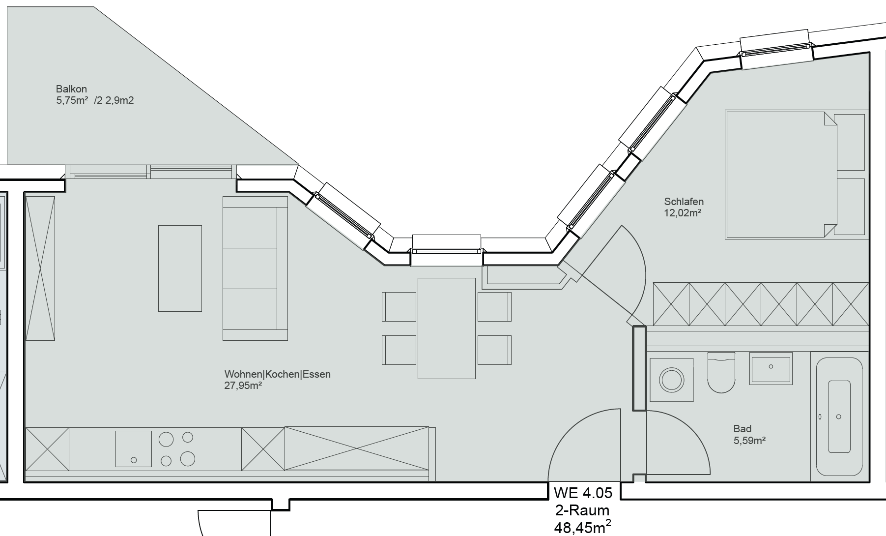
Top 4.05
2‑Zimmer‑Wohnung im 4. OG mit ca. 48,45 m² und Balkon
Kompakt, hell und alltagstauglich: offener Wohn-/Ess-/Kochbereich, ruhiges Schlafzimmer und ein Balkon für frische Luft. Ideal für Singles oder Paare – mit effizienter Raumaufteilung und kurzen Wegen im Haus.




Fordern Sie
jetzt Ihr Exposé an
Im Exposé erhalten Sie alle wichtigen Informationen zu Ihrer neuen Wohnmöglichkeit. Auf Wunsch vereinbaren wir gerne ein persönliches Beratungsgespräch, um Ihre individuellen Fragen zu klären.




















