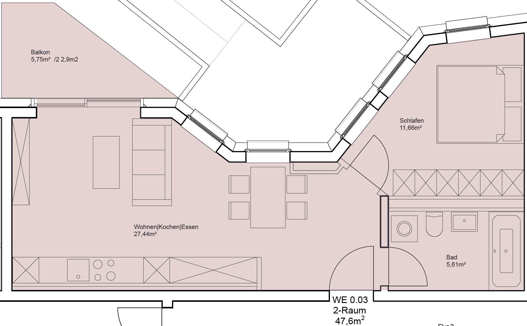
Top 0.03
2-Zimmer-Wohnung mit Balkon
Kompakt, modern und angenehm hell: ein offener Wohn-/Essbereich mit Kfche, ein ruhiges Schlafzimmer und ein Balkon als zuse4tzlicher Freiraum fcberzeugen im Alltag fcber ebenso wie als Investment.




Fordern Sie
jetzt Ihr Exposé an
Im Exposé erhalten Sie alle wichtigen Informationen zu Ihrer neuen Wohnmöglichkeit. Auf Wunsch vereinbaren wir gerne ein persönliches Beratungsgespräch, um Ihre individuellen Fragen zu klären.




















