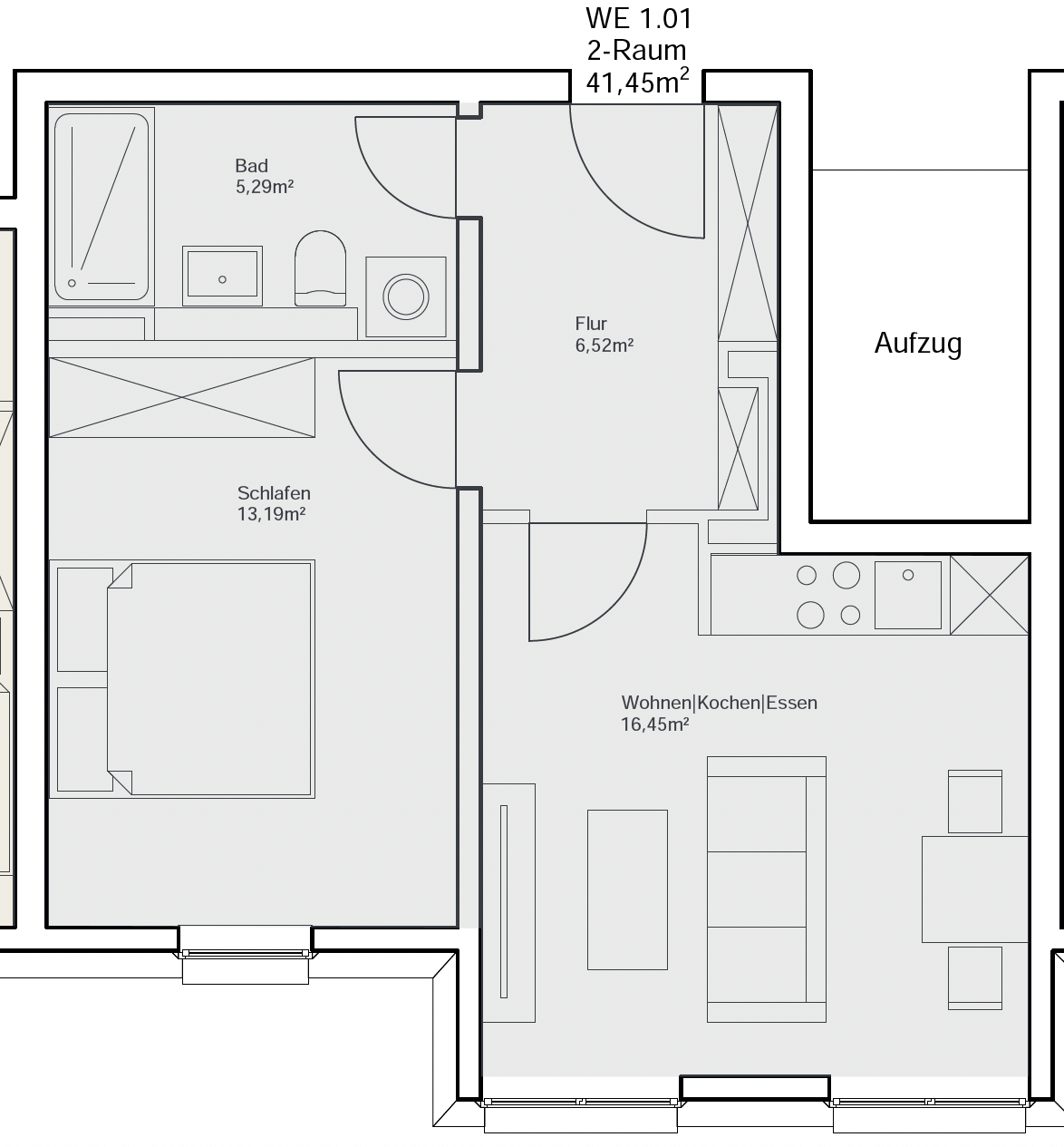
Top 1.01
Kompakte 2‑Zimmer‑Wohnung im 1. Obergeschoss
Kompakt und gut geschnitten: ein offener Wohn-/Ess-/Kochbereich, separates Schlafzimmer und ein effizient geplantes Bad – ideal für Singles oder Paare, die urban wohnen und kurze Wege schätzen.




Fordern Sie
jetzt Ihr Exposé an
Im Exposé erhalten Sie alle wichtigen Informationen zu Ihrer neuen Wohnmöglichkeit. Auf Wunsch vereinbaren wir gerne ein persönliches Beratungsgespräch, um Ihre individuellen Fragen zu klären.




















