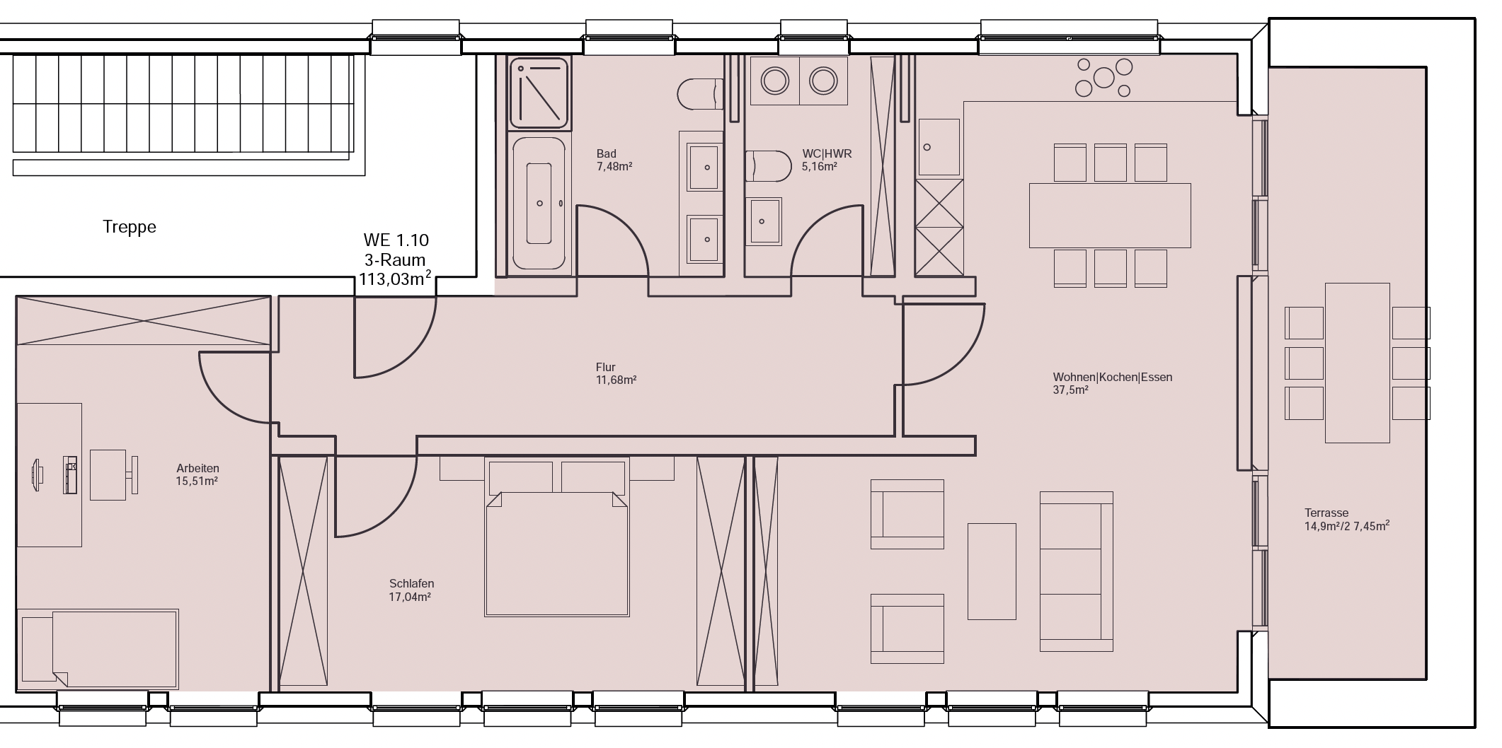
Top 1.10
Großzügige 3‑Zimmer‑Wohnung mit Terrasse
Großzügig geschnittene 3‑Zimmer‑Wohnung mit offenem Wohn-/Ess-/Kochbereich, separatem Arbeitszimmer und zwei Sanitärbereichen. Die Terrasse erweitert den Wohnraum nach draußen – ideal für entspanntes Wohnen in Chemnitz.




Fordern Sie
jetzt Ihr Exposé an
Im Exposé erhalten Sie alle wichtigen Informationen zu Ihrer neuen Wohnmöglichkeit. Auf Wunsch vereinbaren wir gerne ein persönliches Beratungsgespräch, um Ihre individuellen Fragen zu klären.




















